$2,595,000 Sold ($2,595,000)Closed

248 Valley Street

San Francisco, CA 94131

Contact me for details:
Raymond Solis

Description

$2,595,000
248 Valley Street
San Francisco, CA 94131

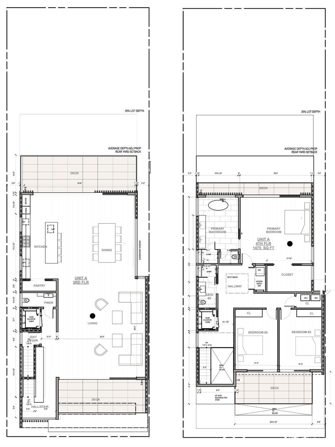
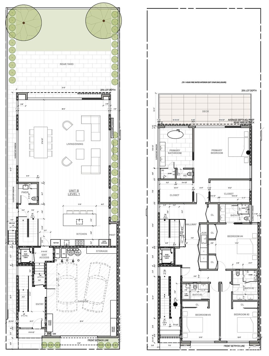
Fully approved shovel ready. Building permit. All DBI fees have been paid and this it ready to break ground for development of 2 new residences spanning 7960 sq ft. The flexible layout can also function as a large generational compound. Set on an extra large flat lot (4312 sq ft ) in prime Noe Valley. Both 2 level residences’ floor plans take advantage of the 38′ WIDE LOT, a rare find in San Francisco. This scale project not be approved under today’s planing legislation.

Listing Provided by:
Michael P. Kramer (DRE #01918367)
Engel & Voelkers Mill Valley
10/13/2025
(Sold) 11/26/2025
Single Family Residence
248 Valley Street San Francisco, CA 94131
7
Bed
8
Bath
0
Parking
sqft
0
MLS#
425077372
Year built
0
loft sqft
4312.44
DOM
72
price/sqft
$
unit
N/A
Contact me for details:
Raymond Solis

Location

Similar Listings