$1,280,000 Pending

1850 Judah Street

San Francisco, CA 94122

Contact me for details:
Raymond Solis

Description

$1,280,000
1850 Judah Street
San Francisco, CA 94122

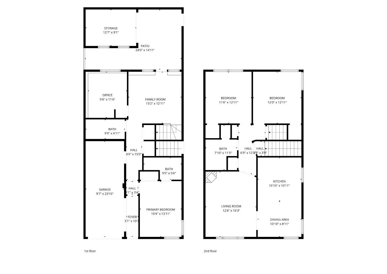
Discover this beautifully situated Central Sunset single‑family home, perfectly positioned on a desirable corner lot just one block from the vibrant amenities of Irving Street coffee shops, bars, restaurants, and everyday conveniences. With Golden Gate Park, the Financial District, and the Judah Street MUNI lines all within easy reach, the location offers an exceptional blend of comfort and convenience. The upper level features two generous bedrooms, a well‑appointed full bath, and a sun‑filled living room with a striking fireplace and expansive double‑pane windows that flood the space with natural light. An open floor plan seamlessly connects the dining area to the updated kitchen, complete with stainless steel appliances and abundant cabinetry ideal for both daily living and entertaining. The lower level offers remarkable flexibility, including two additional bedrooms, two full bathrooms one part of a private guest suite a cozy family area, and a one‑car garage with a dedicated laundry space. The backyard includes a spacious storage shed, and a separate side entrance enhances privacy and convenience for the lower level. Thoughtfully updated with a functional layout and timeless charm, this home presents a rare opportunity to create your dream residence in one of San Francisco’s most sought‑after neighborhoods.

Listing Provided by:
AiLing Ye (DRE #02045940)
Surpass Real Estate & Finance
1/22/2026
Single Family Residence
1850 Judah Street San Francisco, CA 94122
4
Bed
3
Bath
0
Parking
sqft
1,670
MLS#
426094943
Year built
1941
loft sqft
1437.48
DOM
77
price/sqft
$766
unit
N/A
Contact me for details:
Raymond Solis

Location

Similar Listings